Skip to content
About Us
About Us
Sustainability
Privacy Notice
Industrial Parks
Mexicali
Tijuana
Hermosillo
Querétaro
Rosarito
Space For Lease
Mexicali
Tijuana
Rosarito
Hermosillo
Querétaro
Job Opportunities
My invoices
About Us
About Us
Sustainability
Privacy Notice
Industrial Parks
Mexicali
Tijuana
Hermosillo
Querétaro
Rosarito
Space For Lease
Mexicali
Tijuana
Rosarito
Hermosillo
Querétaro
Job Opportunities
My invoices
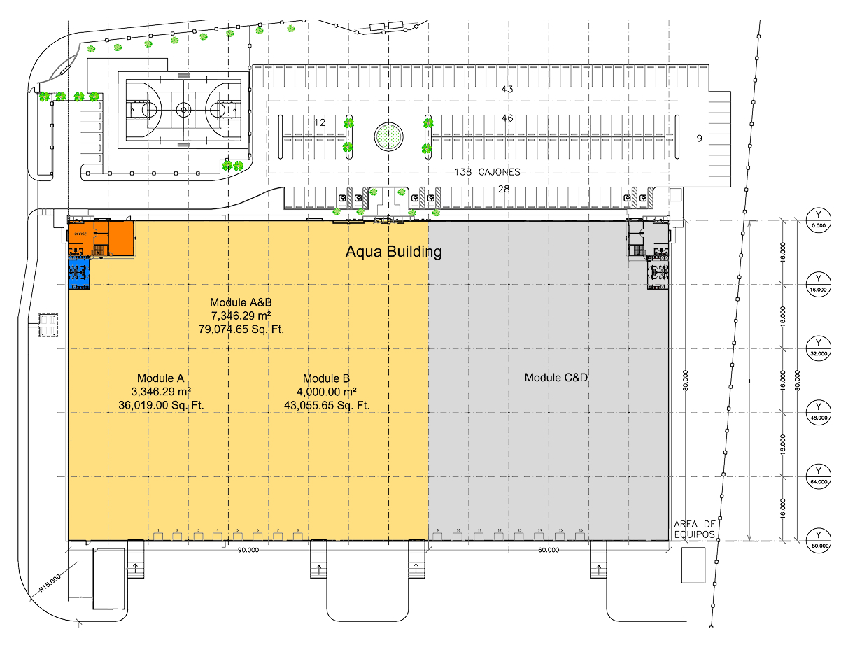
79,074 sq.ft.
Aqua Building
Vie Verte industrial park
Mexicali, BAJA CALIFORNIA
Building Specifications
ft²
m²
Total area
79,074 sq.ft.
Office
3,149 sq.ft.
Production restrooms
Men & Women for 110
Bay spacing
52 ft x 33 ft
Clear height
22 ft
Max height
27 ft
Construction type
5 Inch concrete tilt up
Roof
KR-18 Standing seam metal
Roof & walls insulation
R-11 Fiberglass
Loading dock equipment
Bollards, dock seals, insulated door and 30,000 lbs capacity electric hydraulic levelers
Additional equipment
Cafeteria for 25 employees
Floor slab thickness
5 in Load capacity 8 ton / m2
Loading docks
8 (9 ft x 10 ft)
Ramps
3 (12 ft x 16 ft)
Lighting
LED Light
Electrical substation
500 KVA
Fire prevention system
Hoses & cabinets
Parking spaces
79
Divisible modules
2 Modules
Skylight
4% on roof and lateral windows for natural light
Total area
7,346 m²
Office
292 m²
Production restrooms
Men & Women for 110
Bay spacing
16m x 10m
Clear height
6.7 m
Max height
8.1 m
Construction type
5 Inch concrete tilt up
Roof
KR-18 Standing seam metal
Roof & walls insulation
R-11 Fiberglass
Loading dock equipment
Bollards, dock seals, insulated door and 30,000 lbs capacity electric hydraulic levelers
Additional equipment
Cafeteria for 25 employees
Floor slab thickness
5 in Load capacity 8 ton / m2
Loading docks
8 (2.7mx3m)
Ramps
3 (3.6mx4.8m)
Lighting
LED Light
Electrical substation
500 KVA
Fire prevention system
Hoses & cabinets
Parking spaces
79
Divisible modules
2 Modules
Skylight
4% on roof and lateral windows for natural light
Gallery
Layout
Las fotos y planos son para uso exclusivo de IAMSA y cualquier otro uso esta sujeto a derechos de autor.
download
Building Location
More Space For Lease
Learn more details about the available spaces we have for you in Baja California.
Las Californias (Mexicali)
Shelter Building
7,095 sq.ft.
Las Californias (Mexicali)
Invertido 1 Modulo B
21,212 sq.ft.
Vie Verte 2.0 (Mexicali)
Ventus Building
119,180 sq.ft.
Stone Complex (Mexicali)
Stone Building
241,752 sq.ft.
El Dorado 2 (Mexicali)
Pargo Building
181,556 sq.ft.
Palaco (Mexicali)
Inventory 8
65,230 sq.ft.
EN
ES
ZH
EN